
Мэрия Орла хочет организовать в орловском сквере Семьи всепогодный санузел. Соответствующий тендер появился на портале Госзакупок.
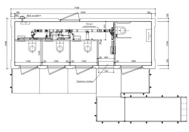
Согласно описанию объекта закупки, городская администрация планирует установить туалет размером 7,6 метра на 2,5 метра и высотой не менее трёх метров, окрашенный в цвет графита.
Внутри него будут находится четыре кабинки, одна из которых предназначена для маломобильных групп населения. Кабинки хотят оснастить антивандальным оборудованием.Посещать туалет можно будет при любой погоде, так как в проекте предусмотрено отопление помещения. Однако удовольствие будет не бесплатным – в контракте также упоминается установка терминала для оплаты. Сколько будет стоить одно посещение, не уточняется.
На данный момент закупка находится на стадии поиска подрядчика, он будет длится до 15 августа. После чего выбранная контора должна будет построить санузел в течение 80 дней. Стартовая максимальная цена контракта составляет 9,86 млн рублей.

Свежие комментарии